发布日期:2026-02-06 00:55 点击次数:162

地址:粗莽家园
设想施工单元:久栖设想
面积:36㎡
造价:30万
立场:中古风
说在前边:
本案是一户新婚小佳偶,家里有两只能儿的小狗狗。但愿本次装修,让这个小家不单是住来住那么疏忽,更是一个大概进步生存质地、欣喜多功能需求、创造一个愈加好意思好的居住体验、不仅‘住得下’,还要‘住得爽’,让屋子随着生存一都长大。

客厅在颜色采纳上,领受了中性色手脚主基调,如米色、灰色和白色,这些热枕不仅经典耐看,还能与多样讳饰立场相交融。悬浮墙的阴角处领受弧形设想,这种私有的不时方式,不仅增添了视觉上的慈祥感,更在细节之处体现了空间的纵情。

通过买通客厅与餐厅的界限,创造了一个灵通而通透的空间布局。木质产品的温润色调,为客厅增添了一份善良和怡悦感,与中性色调酿成了调解的对比,增多了空间的线索感。

阳台区域的弧形造型,与倒角细节处理得恰到刚正。大窗户引入了富余的当然后光,不仅照亮了整个客厅,还增强了室内与室外环境的干系。

客厅采纳了米白色电动沙发,通过抱枕、地毯等小件软装的点缀颜色,如棕色和红色,为空间注入了活力和个性,使客厅愈加生动意旨。

客厅悬浮墙的阴角处领受了弧形设想,与墙角运动的不时方式不仅好意思不雅,还能灵验幸免明锐边缘带来的安全隐患,增多了空间的慈祥感。悬浮险峻空间对称,提前驯服好的电视的尺寸。为了举座好意思不雅性,电视镶嵌悬浮墙体,内部刷了玄色墙漆和电视游刃有余。

餐边柜不仅提供了富余的储物空间,用于存放餐具、酒类和饰品等,增多了空间的实用性和好意思不雅性。配色领受了白色与深木色的搭配,白色柜门与深木色背板酿成昭彰对比,骨骼线的造型既当代又不失温馨。

折叠餐桌采纳了3折叠,实足翻开的时辰不错坐6个东谈主。在不使用时不错收起到很小的规模,为餐厅提供了更多的举止空间,相配妥当小户型或需要活泼使用空间的家庭。

客厅与厨房之间买通,在顶面设想了弧形灯带。这种设想不仅视觉上鉴别了两个空间,还增多了整的线索感,提供了慈祥的照明氛围,营造一个温馨怡悦的家居环境。

雪柜外移到玄关,厨房酿成“取-洗-切-炒-出”的运动使用纪律。小空间不仅增多了电器柜,还加入了镶嵌式饮水机、使得厨房电器的摆放愈加有序,提高了厨房的使用效用。侧面过谈也绝不奢侈,贴上磁吸板,旅游带总结的摆件和本日菜谱,生存气满满。

厨房区域设想了富余的橱柜和吊柜,增多了储物空间的同期,也减少了卫死活角。通过合理的布局,咱们优化了从厨房到餐厅再到客厅的动线,使得泛泛举止愈加运动,提高了生存便利性。

玄关结构设想计划了多功能性,纠合了鞋柜、展示架和换鞋凳,欣喜了泛泛使用需求。换鞋凳下方设有灵通式鞋架,方便存放常穿的鞋子,保合手进口整洁。

入户门右侧有一处称重柱,借用卡座设想的凹处边缘,设想了业主疼爱的手办区。内置照明不仅增强了展示后果,还为进口处提供了慈祥的后光,增多了空间的温馨感。

在设想玄关中,通过巧妙的布局鬈曲,为空间动线和储物需求增添了更多的功能性。顶面设想合营客厅弧形灯带,增强了空间的立体感,星空app注册登录营造温馨氛围。

通过玄关走向客厅,顶面设想合营客厅弧形灯带,侧墙搭配了燕子石膏讳饰,绘身绘色。

卫生间增多1米的半高墙+蓝色手工砖点缀+玄色pd折叠推拉门,不仅增多了空间的通透性,还引入了更多的当然后光,使卫生间显得愈加亮堂和庞杂。举座策动后,幸免清早列队使用,生存也愈加通俗。

卫生间花式改革鉴别出了干湿分离,洗衣机烘干机在水盆对面,这么清洗小件衣物,就再也毋庸跑来跑去啦。

关于使用面积仅有36平的小户型来说,干湿分离还是成为了挥霍。为了省俭空间和便于收拾卫死活角,把淋浴区和马桶区设想在了吞并组空间,狗狗考试上茅厕也计日奏功~

主卧和客厅的材质采纳上追求一致性,使用了相通的木质材料,增强了空间的举座感和连贯性,使得产品之间酿成了细致的对话。

白色的衣柜门板与木色格子作勾搭,增多一种视觉线索。衣柜的结构设想计划了多功能性,包括闭塞式储物空间和次净衣区。衣柜的布局设想计划了衣物的吊挂和折叠需求,以及小物件的分类存放,确保了空间的高效愚弄。

主卧的床的设想上,鄙人面作念一组不错脚踢回弹翻开的的抽屉,不错顺手舍弃小件物品。增多了感应灯带,增多一种悬浮的空间后果。


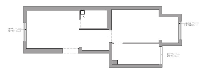
更正前:
1.无玄关
玄关收纳不及,唯有少量薄鞋柜,鞋子不仅不够放,一稔也没场所挂。第一眼就“乱”。
2.厨房“孤岛”
闭塞小空间,和本来就不大的客厅一分为二。雪柜放进去后,操作台就会变得太小,作念饭像打怪。
3.餐厅无处可放
原门厅既要换衣帽,还要有放餐桌,三菜一汤就占满,亲一又来访更是加椅无位。
4.卫生间“早岑岭”
一花式的卫生间仅有3.2㎡,一东谈主刷牙全家列队,水汽漫到马桶区,潮湿+异味双重暴击。
5.收纳“真空区”
全屋除主卧 1.8 m 小衣柜外,零收纳,行李箱、玩物、扫地机全露宿客厅。
6.主卧更鸡肋
开门直瞪卧室,不仅莫得安全感,还毫无秘籍。

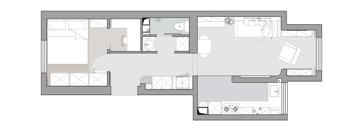
更正后:
1.玄关“齐东野语”
斗室子最繁难的即是收纳,换鞋凳,挂衣区,家政区,大雪柜,遮掩强弱电箱,在门厅处全部处分。愚弄弗成打掉的称重柱,讳饰了小手办展示。
2. 厨房“灵通”变 LDK
拆掉 60mm 薄墙,翻开了客餐厨之间的隔断,提高了空间愚弄率。雪柜外移,酿成“取-洗-切-炒-出”的操作纪律。小空间不仅增多了电器柜,还加入了镶嵌式饮水机。
3.客厅“悬浮电视墙”
打掉厨房和客厅之间的墙体,莫得闭塞式隔墙,设想了悬浮电视柜。客厅、餐厅、厨房各自功能寂然,彼此串成一个互动纠合区。
4.家政“洗烘一线”
卫生间开门换个标的,改成干湿分离。不仅彭胀洗漱区,在客厅、主卧,去卫生间都很方便。和门厅连为一体的家政柜,几乎不要太顺畅。
5. 收纳总量“翻倍式暴击”
玄关不仅作念了分类储物,主卧还有一溜衣柜、地台床的抽屉、客厅的酒柜和阳台的宠物收纳。
6.主卧“爆改”
把正本莫得策动的主卧重新鉴别后,欣喜精巧性的同期,又借了少量空间隔出来一个小电竞基地。
Copyright © 1998-2026 星空体育app官方网站™版权所有
技术支持:®星空体育 RSS地图 HTML地图
Powered by365站群